Eelco Roelsma
Home
Design
About
Contact
Interior Design
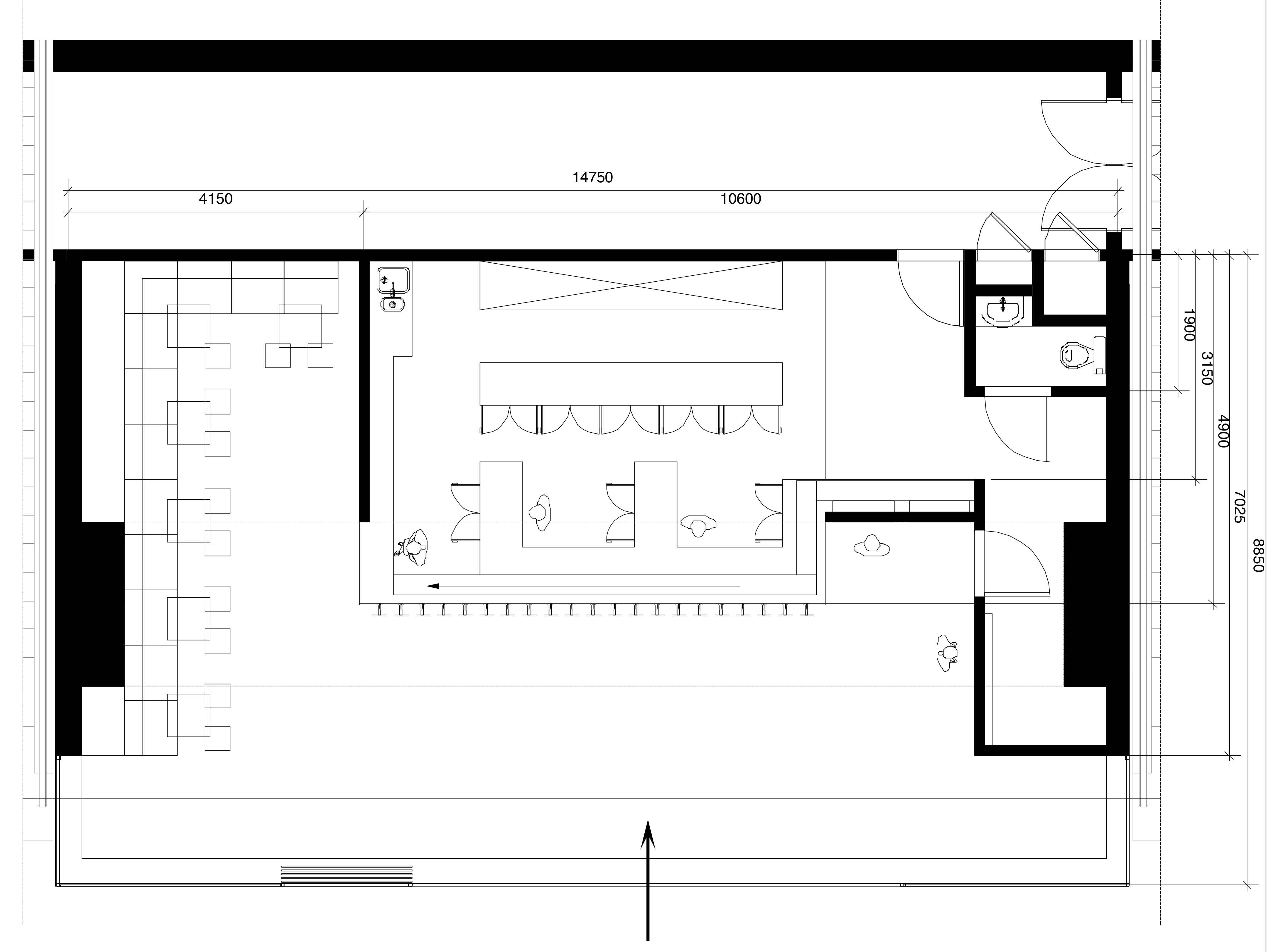
Bento Go
Bento Go is a fictional store in the new central station of Rotterdam. The shop sells sushi and the customer can pick its own selection of sushi to be put in a self chosen box, called a ‘bentobox'. The bentobox hangs centrally in the store and behind the boxes is an open kitchen visible, where the selection is prepared and packed on the spot.